Nos avis clients
Nos avis clients
0

Bord de mer et golf

Port-en-Bessin-Huppain (14520)
Réf : 7578-4

Vente en l'Etat Futur d'Achèvement (VEFA)


Dans un lotissement haut de gamme à Port-en-Bessin-Huppain, niché dans un cadre privilégié, votre prochaine propriété bénéficiera d’un environnement calme et verdoyant, à deux pas du golf d’Omaha Beach et du littoral.

 

 Caractéristiques principales :

  • Construction neuve aux prestations haut de gamme

  • Architecture contemporaine et finitions soignées

  • Chauffage par aérothermie pour un confort optimal et des économies d’énergie

  • Matériaux de qualité et isolation performante

  • Jardin privatif et garage

  • Proximité immédiate des commodités

 

Les informations sur les risques auxquels ce bien est exposé sont disponibles sur le site Géorisques : www.georisques.gouv.fr

 ADDE Immobilier

12 rue Saint Malo

14400 BAYEUX

02 31 92 02 41

www.adde-immo.com

Prix du bien 417 345 €
Pièce(s) 4
Chambre(s) 3

Caractéristiques du bien

Caractéristiques Valeurs
Code postal 14520
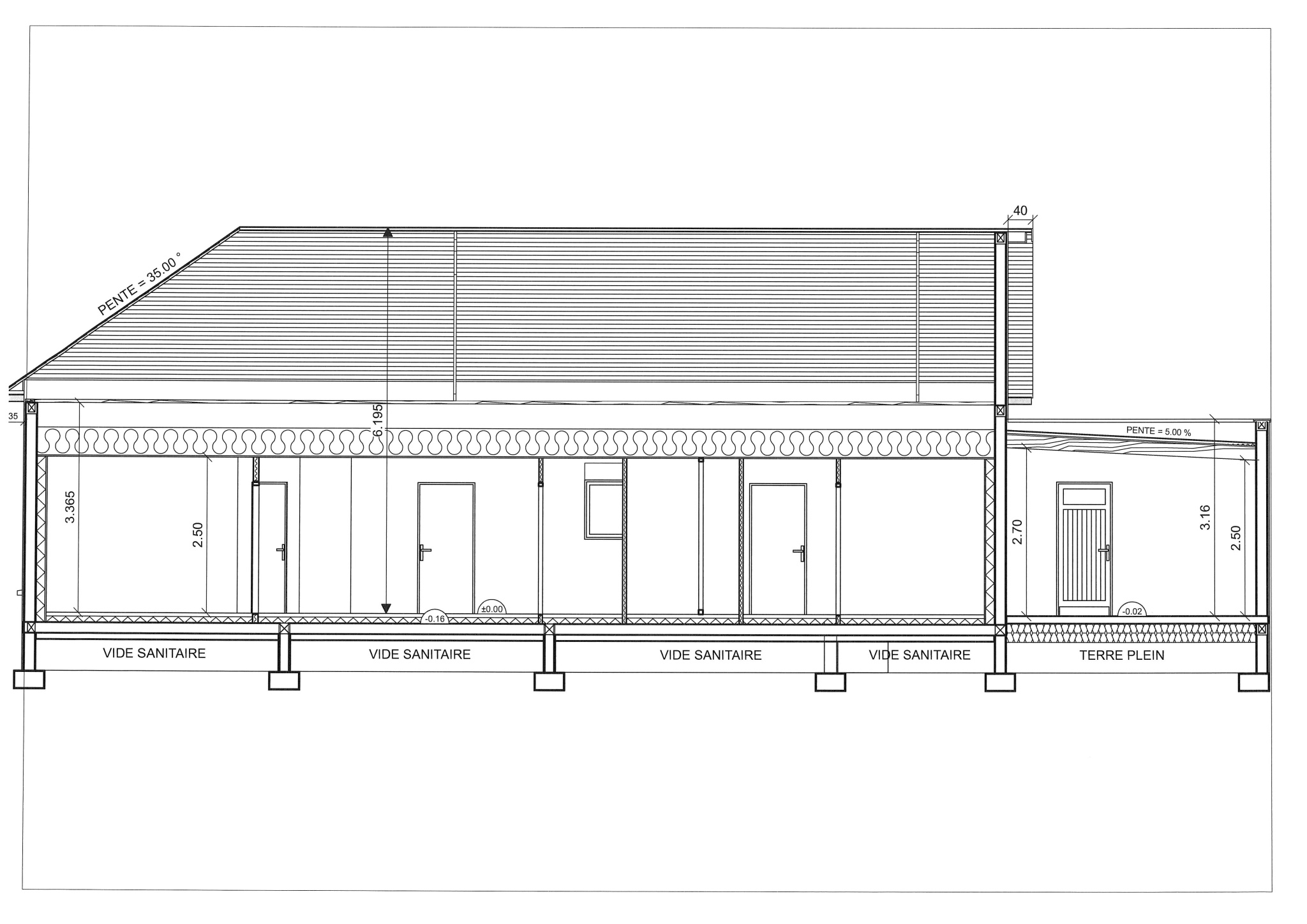
Surface habitable (m²) 122,58 m²
surface terrain 460 m²
Surface loi Carrez (m²) 122,58 m²
Nombre de chambre(s) 3
Nombre de pièces 4
Nombre de niveaux 1
Vue Jardin
Nb de salle d'eau 1
Cuisine Américaine
Mode de chauffage Aérothermique
Type de chauffage TRAD_TYPE_CHAUFF_AIR_EAU
Format de chauffage Individuel
Interphone NON
Visiophone NON
Terrasse NON
Nombre de garage 1
Nombre de parking 1
Exposition Sud
Quartier Proche De La Mer
Terrain piscinable NON
Terrain arboré NON

Infos financières

Caractéristiques Valeurs
Prix de vente 417 345 €
Les honoraires d'agence seront intégralement à la charge du vendeur  

Bilans énergétiques

DPE GES
Ce bien vous intéresse ?
Fieldset par défaut
Fieldset par défaut
Validation

* Champs obligatoires

Contacter l'agence
Validation
Les informations recueillies sur ce formulaire sont enregistrées dans un fichier informatisé par La Boite Immo agissant comme Sous-traitant du traitement pour la gestion de la clientèle/prospects de l'Agence / du Réseau qui reste Responsable du Traitement de vos Données personnelles. La base légale du traitement repose sur l'intérêt légitime de l'Agence / du Réseau. Elles sont conservées jusqu'à demande de suppression et sont destinées à l'Agence / au Réseau. Conformément à la loi « informatique et libertés », vous disposez des droits d’accès, de rectification, d’effacement, d’opposition, de limitation et de portabilité de vos données. Vous pouvez retirer votre consentement à tout moment en contactant directement l’Agence / Le Réseau. Consultez le site https://cnil.fr/fr pour plus d’informations sur vos droits. Si vous estimez, après avoir contacté l'Agence / le Réseau, que vos droits « Informatique et Libertés » ne sont pas respectés, vous pouvez adresser une réclamation à la CNIL. Nous vous informons de l’existence de la liste d'opposition au démarchage téléphonique « Bloctel », sur laquelle vous pouvez vous inscrire ici : https://www.bloctel.gouv.fr Dans le cadre de la protection des Données personnelles, nous vous invitons à ne pas inscrire de Données sensibles dans le champ de saisie libre.
Ce site est protégé par reCAPTCHA, les Politiques de Confidentialité et les Conditions d'Utilisation de Google s'appliquent.

Localisationdu bien

  • Commerces et santé
  • Loisirs
  • Ecoles
  • Transports
  • Pratique